克孜勒苏柯尔克孜自治州 切换城市

请选择您所在的城市:

    热门
    城市

    建筑库

    发布投稿
    客服热线13888687795

    日本·Escalier Rokubancho 办公室---ETHNOS

    2024-11-19 23:15:19

       作者:九天之上

    阅读:1345

    评论:0

    [摘要] 设计单位ETHNOS地址日本建筑面积1177 m²项目年份2023摄影Keishin Horikoshi /SS继 “ESCALIER 五番町 ”和 “ESCALIER 小路町 ”之后,我们获得了在四谷车站附近设计一座租户大楼的机会,这也是我们的第三个项目。我们的目标一直是为占城市很大一部分的中小型租户建筑实现商业和社会两方面的目标
    日本·Escalier Rokubancho 办公室---ETHNOS
    • 设计单位

      ETHNOS
    • 地址

      日本
    • 建筑面积

      1177 m²
    • 项目年份

      2023
    • 摄影

      Keishin Horikoshi /SS


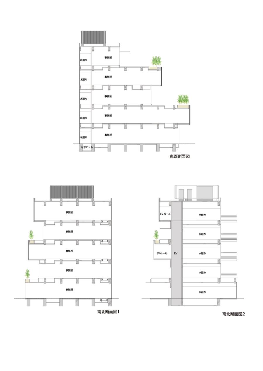
    继 “ESCALIER 五番町 ”和 “ESCALIER 小路町 ”之后,我们获得了在四谷车站附近设计一座租户大楼的机会,这也是我们的第三个项目。



    我们的目标一直是为占城市很大一部分的中小型租户建筑实现商业和社会两方面的目标,但这次由于规模经济以及开发商和建筑商的合作,我们得以实现前两个项目无法实现的目标。



    建筑体量在西侧和北侧之间来回交叉,形成一个阳台,作为中间区域,有助于提升建筑的商业潜力。



    人已打赏

        ×

        打赏支持

        打赏金额 ¥
        • 1元
        • 2元
        • 5元
        • 10元
        • 20元
        • 50元

        选择支付方式:

        打赏记录
        ×

        精彩评论文明上网理性发言,请遵守评论服务协议

        共0条评论
        加载更多

        打赏成功!

        感谢您的支持~

        打赏支持 喜欢就打赏支持一下小编吧~

        打赏金额¥{{ds_num}}
        打赏最多不超过2000元

        收银台

        订单总价¥0.00

        剩余支付时间:000000

        手机扫码支付

        使用支付宝、微信扫码支付

        余额(: ¥)
        为了您的账户安全,请尽快设置支付密码 去设置
        其他支付方式